交易价格: 面议
类型: 非专利
技术成熟度: 正在研发
交易方式: 完全转让
联系人: 长安大学
所在地:陕西西安市
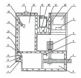
一种自动沥青量取装置,加热主仓上方设计算机、可编程控制器、电机、加热副仓、称量单元,称量单元通过回流阀与加热主仓相联通,加热副仓顶部设沥青输入口盖,加热副仓通过沥青输入单向阀与加热主仓相联通,加热主仓通过沥青输出单向阀和回流阀与加热副仓相联通,加热主仓内设活塞,活塞的活塞杆上加工有齿条与电机输出轴土的齿轮啮合活塞上设位移传感器,加热主仓侧壁上设装有手动刀闸阀的沥青输出管道,加热主仓内与加热副仓的联通处回流腔与加热主仓通过回流总阀相联通,回流腔内设温度传感器,温度传感器、位移传感器、称量单元通过导线与计算机相连,加热主仓、加热副仓、称量单元外壁设保温层和与可编程控制器相连的加热管。

成果推荐 需求推荐 评估专家推荐 评估机构推荐
Copyright © 2018 宁夏回族自治区生产力促进中心 版权所有 宁ICP备11000235号-3 宁公网安备 64010402000776号